Papeye is a design for 22 houses by a group of (then) young architects for Leiedal: Stephane Beel, Philip Deceuninck, Dirk Defraeye, Koen Van De Vreken, Xaveer De Geyter, Frank Delmulle, Eugeen Liebaut, William Lievens, Rudy Debacker, and Luc Reuse.
The urban design is based on the original street plan as envisioned by the intermunicipal authority Leiedal, with only one key adjustment: instead of a dead-end street, a loop is created. Plots on the site are assigned by lottery. Each architect is therefore given a specific assignment tied to a specific location and neighbor. This results in design freedom grounded in a perfect dialogue. The underlying vision weaves the diverse designs into a unified whole.
Designing freely and without urban planning regulations is made workable by bringing together people with a shared vision, combined with authority and maturity. This naturally leads to a wide range of possible building forms and ways of living, where external qualities are the result of internal possibilities—with an essential element of risk. To achieve beauty, risk must be taken.
Each house is situated on a plot of about 500 m² and has around 150 m² of living space. The built-up footprint ranges from 25 m² for the tallest structure to 150 m² for the single-level house. This design approach reaches a wide audience, yet it provokes feelings of unease, curiosity, and uncertainty.
Scattered throughout the neighborhood, main volumes 9 through 16 are conceived as geometric 'beams' composed of industrial elements and are oriented either parallel or perpendicular to the infrastructure. These simple volumes aim to offer maximum space and flexible layout options. Secondary or peripheral volumes are organized under organic surfaces that respond ad hoc to the specific site conditions of each plot. These zones allow for future functional expansions. The two form components either complement or contrast with each other, depending on the functional and activity-related interpretations.
Volumes 17 and 18 together form a spatial composition through their shapes, positioning, arrangement of access routes, and the character of the in-between spaces. This composition creates a relationship between the two homes, though conceptually there is a clear nuance. House 17 is enclosed in a sober beam form. House 18, by contrast, has an exuberant form that visually clashes with the simplicity of House 17. Its curved walls define a specific spatial character both inside and out. The living area on the first floor maintains visual contact with the garden despite its low floor height, and still guarantees a panoramic view of the surroundings. Its solidity is articulated through traditional stone and concrete construction.
Due to the small plot size and social housing budget, a beam-shaped semi-detached structure (houses 19 and 20) was chosen for the western part of the neighborhood. The orientation flexibility of the towers in relation to the beam ensures optimal sun exposure. The tower itself gives residents a sense of identity and place.
Connected to these are two houses, 21 and 22, which as products emerge from our collective tendency toward a neutral space that evokes character. Depending on how they are used and inhabited, they could resemble a loft, an old factory, or a large house. The atmosphere is reminiscent of memories from travels through French villages, old train stations, or rectories... They are archetypes with simple geometric volumes that radiate patience—spaces where the turbulence of the Western spiritual “septic tank” can slowly settle.
In Frank Delmulle’s design, the house is located at the northern part of the site, at the back of the garden. This allows for optimal sunlight in both the garden and the adjoining living space. The shape of the volumes, their positioning, the surface arrangement of access paths, and the character of the interstitial spaces together form a spatial composition. This creates a relationship between both houses, though again with a conceptual nuance.
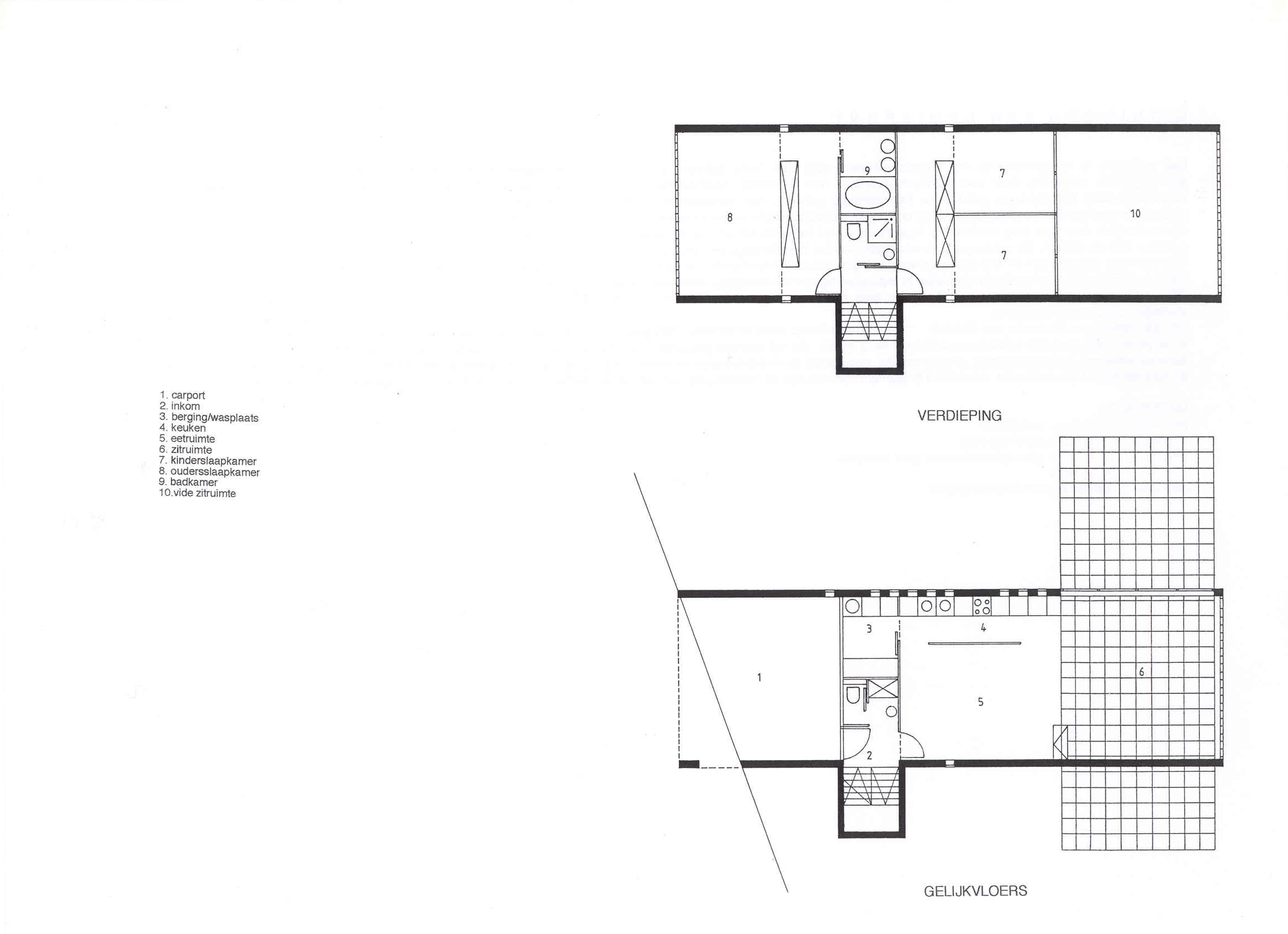
House EL-1 is enclosed in a sober beam form. The ground floor consists of an open platform situated between two glass facades, with a freestanding volume (not touching the exterior walls) containing technical functions such as the kitchen, storage, WC, staircase, etc. On the upper floor, windows and skylights create a unique lighting atmosphere in the bedrooms. Only the two longitudinal facades of House EL-1 have an outer cavity wall replaced with corrugated aluminum cladding.
Due to its exuberant form, House EL-2 contrasts with the simplicity of House EL-1. Its curved walls define a specific spatial character both inside and out. The ground floor, with limited height, contains technical functions such as the entrance, carport, storage, laundry room, WC, etc. The living area on the first floor maintains a strong connection to the garden due to the low floor height (2.20 m), while still offering a panoramic view of the surroundings. The second floor houses the bedrooms, which are more enclosed in nature. Its solidity is emphasized by traditional stone and concrete construction, with the exterior stone walls finished in white stucco.
CREDITS
Status: 1989
Team: Frank Delmulle
PUBLICATIONS
Konfrontaties in moderne architectuur, 1990: Een promenade in en rond Kortrijk / AB-flash, 1991: kijkdorp "papeye / Domino, 1991: Een architecturaal forum in Aalbeke / Trends, 1991: Project Papeye: De nieuwe architectuur / De Singel, 1992: 'Laboral te Aalbeke: Vier muren en een dak






